Serverschrank - Eigenbau

Zurück zur vorherigen Seite

Hat man zu Hause oder in seinem Büro mehrere Rechner stehen, wünscht man sich oft die Möglichkeit diese irgendwo zu verstauen. Nicht überall macht ein 19" Rack Sinn, hat man einen leeren Schrank zur Verfügung oder kann solch eine durchaus sinnvolle Rollwagen Lösung wie abgebildet verwendet werden.

Sei es dass das 19" Rack nicht in der gewünschten Form oder Farbe lieferbar ist, nicht zur Innenausstattung passt, nicht in das Haushaltsbugdet passt oder einfach nur weil man sich eine für sich passende Lösung basteln will. Der Autor wollte seine Server in einen Schrank verbannen, der auch 19" Bauteile fassen kann, falls man später auf reine 19 Zöller umsteigt. Natürlich sollte der Serverschrank fahrbar sein, gut belüftet und über eine USV abgesichert werden können. Zudem musste er natürlich guten Zugriff auf die Technik ermöglichen und verschließbar sein.

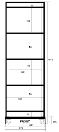
Abbildung: Serverschrank 19" in Holzbauweise (Eigenbau)

Handwerklich interessierte und geübte Mitmenschen können sich mit relativ einfachen Mitteln ihren 19" Schrank in Holzbauweise erstellen. Bei fast 2 Metern Höhe und einem Tiefenmaß von 600 mm bleiben 600 mm für die lichte Breite. Damit passen 19" Geräte auf jeden Fall hinein und können an der Innenverstrebung (483 mm) befestigt werden. Serverschrank (Eigenbau)

Auch bei einem solchen Eigenbau sollte man ein paar Dinge beachten:

  • VORHER Gedanken machen was man, wie und wo installieren möchte
     
  • Gute Durchlüftung durch regelbare Lüfter
     
  • Abschließbar, möglichst mit einem Schlüsselsystem
     
  • Erweiterbar durch ein flexibles Ebenensystem
     
  • Gute Zugänglichkeit an Kabel und Geräte
     
  • Bei der Verschaltung auf einen USV Einsatz achten, das spart Nacharbeit 
     
  • Kabelauflagen und Kabelhalterungen anbringen
     
  • Starke Industrierollen (gummiert mit ca. 8 cm Durchmesser) für den Schrank nutzen
     
  • Zur Vernetzung die Twisted-Pair und ISDN Dosen dienstneutral auflegen, das macht das ganze flexibler
     
  • Eine CPU Switch zur Steuerung mehrerer Rechner, eine gute Remote Control Software tut es im Intranet auch
     
  • Durchgehender Potentialausgleich
     
  • Notausschalter nicht vergessen

 

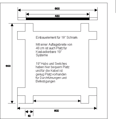
Als zentrale Elemente wurden diese Zwischenböden eingebaut. Sie bieten genug Platz für Kabel und Kühlluft außerdem sind sie stark genug um auch schwere Geräte zu tragen. Die Belastungsgrenze liegt bei 100 kg je Zwischenboden. Da passt sogar ein dicker Server drauf.

Mit einer Kantenlänge von 600 mm passen diese Bösen genau in den Schrank.

Die ausgesägten Angelpunkte sind je 60 mm stark, damit verbleiben 480 mm als reine Stellfläche, 19" Geräte können hier drauf gelegt oder geschraubt werden.

Vorne, seitlich und hinten ist genügend Platz für Kabel und die notwendige Belüftung.

Damit können auch USV oder Batterien untergebracht werden. Zusätzlich ist der Schrankboden verstärkt zur Aufnahme der wirklich schweren Geräte.

Durch die modulare Bauweise ist eine Erweiterung sehr einfach möglich. 


 

Der Aufbau

Zurück

Der eigentliche Schrank besteht aus sechs Ebenen. Ganz oben befindet sich die Entlüftungsebene. Hier sind mehrere Papst Axial-Lüfter eingebaut. Sie sind gummiert befestigt, damit kein Brummen von den Lüftern in den Schrank übertragen wird.

Der Deckel hat eine Klappe von 500 mm im Quadrat für die Wartungszwecke, es hat sich herausgestellt, dass bei offener Klappe der Kamineffekt im Winter normalerweise ausreicht um genügend Kühlluft zu fördern, die Lüfter müssen daher nicht permanent laufen, was die Stromkosten senkt.

Selbstverständlich werden die Lüfter über eine Regelung angesteuert und laufen recht leise vor sich hin. Bei geschlossener Klappe wird die Abluft durch die Lochblende geblasen. In der Entlüftungsebene kann man auf Wunsch auch einen Befeuchter oder einen Aromatisierer hineinstellen, je nach Vorliebe und Wunsch.

 

Derzeit befinden sich in dem Serverschrank folgende Geräte:
  • 1 Monitor
  • 2 SCSI Gehäuse für CD-ROM
  • 1 ISDN Router
  • 2 Cube Server (Server)
  • 1 Standard PC (Linux Host und Firewall)
  • 1 USV für die gesamte Notstromversorgung (Online USV 1,8 KVA)

Übergangsweise wird das nicht benötigte EDV-Gerät auch dort "geparkt". Wenn Sie mehr über den Bau dieses Serverschrankes wissen wollen schreiben Sie einfach an den Autor. Webmaster@hardwaregrundlagen.de

Eine ausführliche Beschreibung, sowie einen bebilderten Bauplan können Sie hier downloaden:

 

Zurück